Location Eisbachstudios
Location
The new event rooms of the Eisbach Studios, situated directly at the A94 between Munich's city center and the fair, exude a unique flair.
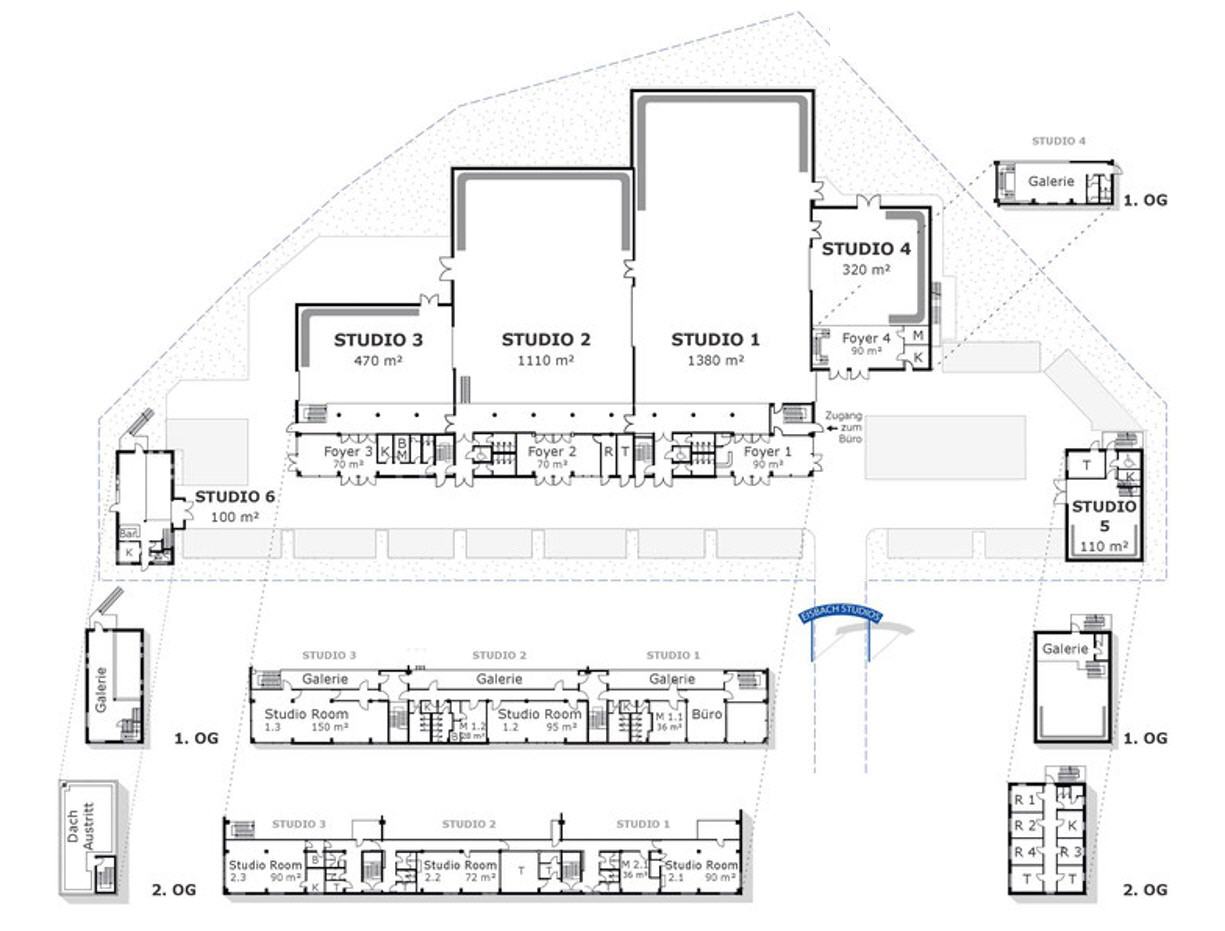
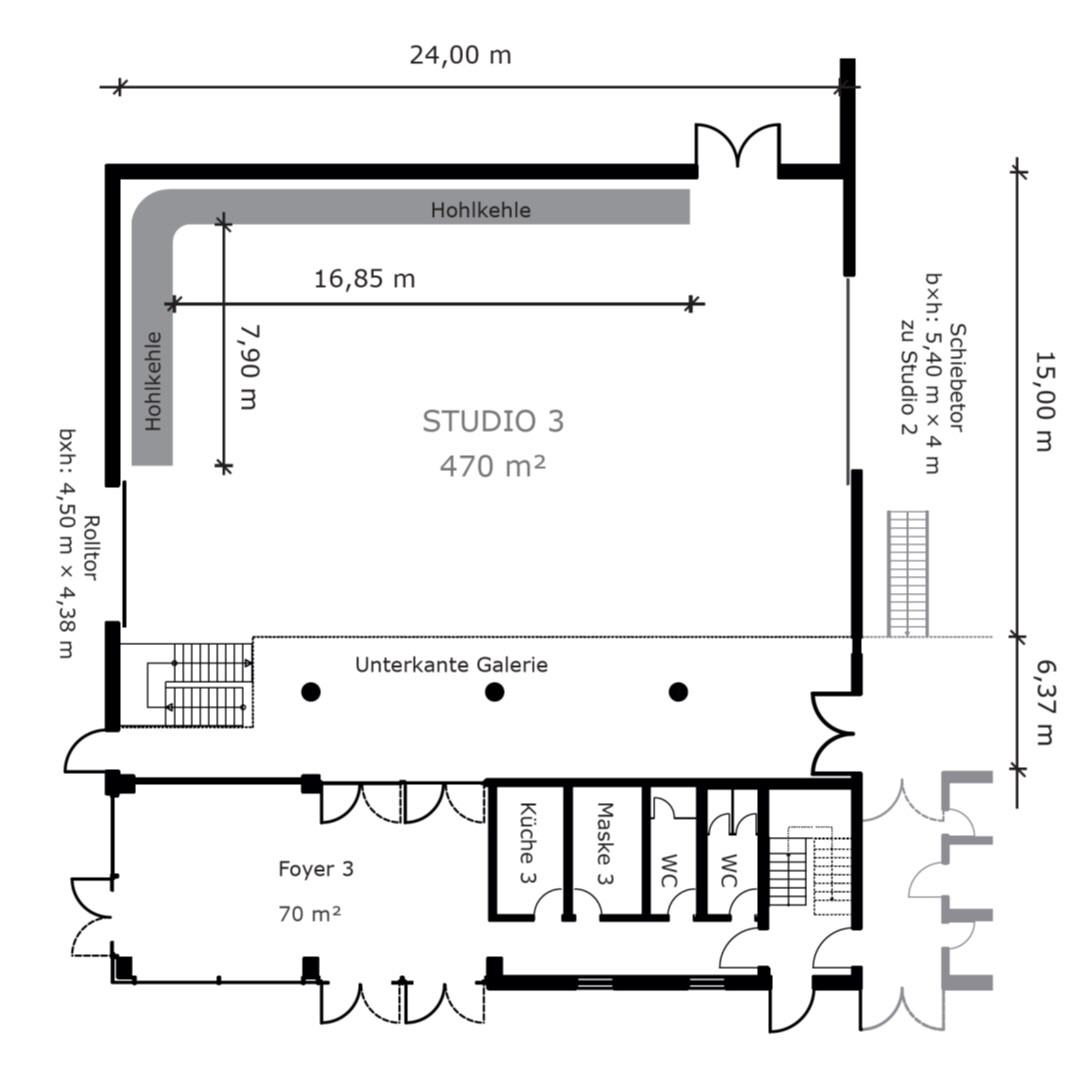
Four studios form the main complex of this outstanding location. They individually offer areas between 320 and almost 1.400 sqm. However, the opening of large intermediate gates also creates a total network of more than 3.500 sqm . Access by truck is very easy, as all studios are at ground level.
The venue provides space for roadshows, in-house fairs or a noble gala evening on site. The studios are also ideal for business use in the context of conferences, workshops, product presentations or various employee events. On the upper floors there are also five adjoining bigger event rooms, which can be flexibly divided into up to eight. Two side buildings complete the area . They can be booked as a service space for a main event, or serve individually as a location for up to 100 people per building.
Their state-of-the-art building technology, high performing infrastructure and flexible room concepts give you a great variety of design options.
benefits
- Flexible availability of more than 3.500 sqm studio and event area
- Easy truck access to all studios on ground floor directly connected
- Stand-alone Indoor- and Outdoor- venue with a variety of branding oppotunities for your event
- Sufficient parking spaces in the immediate vicinity
surroundings
Grasbrunner Strasse 20, D-81677 München
geographic position
We gladly exploit synergies and work together with your traditional suppliers to provide our local and professional know-how.
You decide how we can assist you with your event.
So please don't hesitate to call +49(89) 230 69 66 69 or
Use our contact sheet:
Visit us at Facebook




































