Location Bavaria Filmstudios 9 & 12
Location
The Bavaria Film Studios are located in the northeast of Grünwald in the Geiselgasteig district in the Munich district. They are one of the leading production and service companies in the German film and television industry. The site covers around 30 hectares.
The studios were founded in 1919 and were celebrating their 100th anniversary last year. Directors such as Alfred Hitchcock, Billy Wilder, Orson Welles, John Huston, Ingmar Bergman, Stanley Kubrick, Claude Chabrol, Fritz Umgelter, Rainer Werner Fassbinder, Wolfgang Petersen and Wim Wenders produced their movies as well as many famous actors such as Sophia Loren, Heinz Rühmann or Elizabeth Taylor.
The Bavaria Film Studios are a strong and reliable partner, especially when it comes to the production of shows and events.
The site has 12 studios, numerous indoor and outdoor sets, all technical amenities such as film and TV production technology, outside broadcasting vehicles, decorative construction, props, costumes and post-production.
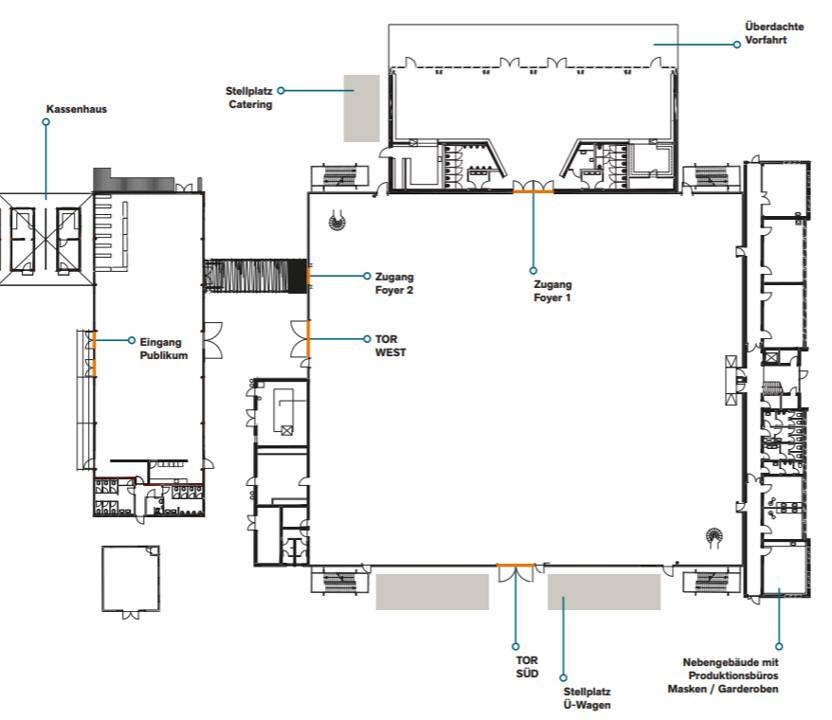
With its 2.400 sqm and another 380 sqm foyer area Studio 9 is one of the largest show studios in Germany.
It has a VIP foyer with a limousine priority area, a public foyer and an annex with 34 adjoining rooms, 2 mask rooms and 2 VIP lounges.
The studio with a height of 17 meters is equipped with 50 movable light support rails and a basic light package (white light, suitable for filtering) and air conditioning.
Next to studio 9 we have an option to rent studio 12 with another 3.150 sqm for you . Studio 12 is the largest studio on the premises and one of the largest cantilevered studios in Europe.
With 16 cloakroom & office rooms, 3 VIP cloakrooms, 2 mask rooms, 5 technical rooms, a catering room and a roof terrace, it is primarily designed for the production of large feature films and lavish entertainment shows. For this purpose, the studio can be connected to the public foyer and studio 9 and thus ensures safe and comfortable guest management.
benefits
- The studios do already carry high quality technical equipment, which helps to reduce construction time and production cost
- Flexible availability of 5.500 sqm studio area plus 1.000 sqm foyers plus numerous side rooms
- Broadband fiber optic connection available on site and usable for WLAN-application of numerous clients
- Sufficient free parking spaces in the immediate vicinity
surroundings
Bavariafilmplatz 7, D-82031 Grünwald
geographic position
We gladly exploit synergies and work together with your traditional suppliers to provide our local and professional know-how.
You decide how we can assist you with your event.
So please don't hesitate to call +49(89) 230 69 66 69 or
Use our contact sheet:
Visit us at Facebook







































